Karta nieruchomości

Biura Brama Oławska

Olawska 35, Wrocław, Stare Miasto

  • Liczne udogodnienia
  • Dogodny dojazd
  • Ostatnie powierzchnie

Kontakt w sprawie wynajmu biura

Paweł Miler

Zadzwoń

Pokaż numer telefonu
Umów spotkanie
  • Czynsz bazowy

    od €14.8/m²

  • Dostępna powierzchnia

    od 260m² do 1 436m²

  • Całkowita powierzchnia biurowa

    14 056m²

  • Dostępny od

    Od zaraz

  • Status budynku

    Istniejący

Kontakt w sprawie wynajmu biura

Paweł Miler

Zadzwoń

Pokaż numer telefonu
Umów spotkanie

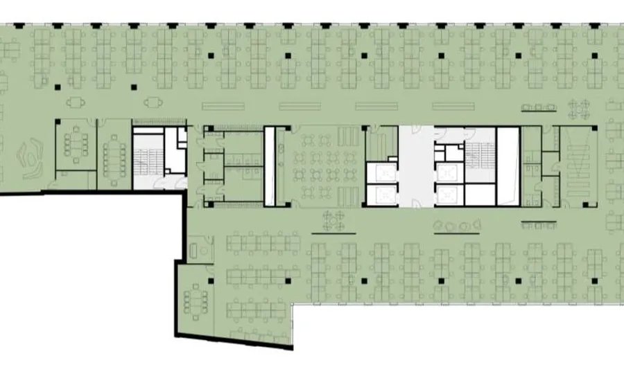
O biurze

Brama Oławska to budynek biurowy klasy A o całkowitej powierzchni najmu 14 056 mkw. Biurowiec będzie posiadał 7 kondygnacji naziemnych oraz 3 podziemne, z ponad 140 miejscami parkingowymi. Architektura budynku połączy elementy nowoczesności z tradycją, nawiązując do sąsiedniej zabudowy. Planowany obiekt będzie zamknięciem i uporządkowaniem ostatniego, niezabudowanego, fragmentu skrzyżowania ulic Oławskiej i Piotra Skargi. W biurowcu zostanie zastosowany system kontroli dostępu, ochrona i monitoring 24h, automatyka budynkowa BMS (Building Management System) oraz „zasilanie dwustronne” budynku wraz z rezerwą miejsca na generator. W pomieszczeniach biurowych zostaną zastosowane m.in. trójszybowe selektywne zestawy okienne, akustyczne podwieszane sufity oraz energooszczędne oświetlenie LED. Budynek spełni szereg wymogów brytyjskiego systemu certyfikacji BREEAM i wg przyjętych kryteriów otrzyma certyfikat na bardzo wysokim poziomie „Excellent”.

Więcej informacji

  • Rodzaj biura

    Tradycyjne

  • Rok budowy

    2023

  • Certyfikaty

    breeam

  • Wskaźnik miejsc parkingowych

    1/83

  • Standard biura

    • prysznice
    • światłowód
    • otwierane okna
    • zamykane szafki
    • stojaki rowerowe
    • podonoszone podłogi
    • okablowanie komputerowe
    • okablowanie elektryczne
    • punkt ładowania samochodów elektrycznych

Komunikacja

  • Przystanek tramwajowy

    100m  (do 3 min)

  • Przystanek autobusowy

    6m  (do 3 min)

Lokalizacja biura

Zobacz biura na wynajem w pobliżu

Zobacz wszystkie
  • Biuro Dominikański - bud. A
    • Liczne udogodnienia
    • +2 więcej

    Dominikański - bud. A

    Podnajem

    Skargi 1, 50-082 Wrocław, Stare Miasto

    Biuro Dominikański - bud. A
    • Powierzchnia

    • Cena

      na zapytanie

  • Biuro Dominikański - bud. A
    • Liczne udogodnienia
    • +2 więcej

    Dominikański - bud. A

    Wynajem tradycyjny

    Skargi 1, 50-082 Wrocław, Stare Miasto

    Biuro Dominikański - bud. A
    • Powierzchnia

      123 - 2 121 m²

    • Cena

      na zapytanie

  • Biuro Dominikański - bud. B
    • Liczne udogodnienia
    • Dogodny dojazd

    Dominikański - bud. B

    Podnajem

    Skargi 3, 50-082 Wrocław, Stare Miasto

    Biuro Dominikański - bud. B
    • Powierzchnia

      3 841 - 3 841 m²

    • Cena

      na zapytanie

  • Biuro Dominikański - bud. B
    • Liczne udogodnienia
    • Dogodny dojazd

    Dominikański - bud. B

    Wynajem tradycyjny

    Skargi 3, 50-082 Wrocław, Stare Miasto

    Biuro Dominikański - bud. B
    • Powierzchnia

      43 - 7 256 m²

    • Cena

      na zapytanie

  • Biuro Pałac Oppersdorfów
    • Dogodny dojazd

    Pałac Oppersdorfów

    Wynajem tradycyjny

    Wierzbowa 30, 50-056 Wrocław, Stare Miasto

    Biuro Pałac Oppersdorfów
    • Powierzchnia

      117 - 374 m²

    • Cena

      na zapytanie

  • Biuro Twelve
    • Dogodny dojazd
    • Ostatnie powierzchnie

    Twelve

    Wynajem tradycyjny

    Oławska 12, 50-123 Wrocław, Stare Miasto

    Biuro Twelve
    • Powierzchnia

      133 - 133 m²

    • Cena

      na zapytanie

  • Biuro Save The World Business Center
    • Dogodny dojazd
    • Ostatnie powierzchnie

    Save The World Business Center

    Wynajem tradycyjny

    Łaciarska 4, 50-104 Wrocław, Stare Miasto

    Biuro Save The World Business Center
    • Powierzchnia

      22 - 272 m²

    • Cena

      od €11.6/m²

  • Biuro Quantum Oławska
    • Liczne udogodnienia
    • Dogodny dojazd

    Quantum Oławska

    Wynajem tradycyjny

    Oławska 11, 50-123 Wrocław, Stare Miasto

    Biuro Quantum Oławska
    • Powierzchnia

      226 - 1 748 m²

    • Cena

      na zapytanie

  • Biuro Nowy Targ
    • Liczne udogodnienia
    • +2 więcej

    Nowy Targ

    Wynajem tradycyjny

    Plac Nowy Targ 28, 50-149 Wrocław, Stare Miasto

    Biuro Nowy Targ
    • Powierzchnia

      353 - 1 987 m²

    • Cena

      na zapytanie

Zobacz wszystkie
  • Lokalizacja

    Olawska 35, 50-124 Wrocław, ...

  • Czynsz bazowy

    od €14.8/m²

  • Dostępna pow.

    od 260m² do 1 436m²

Karta nieruchomości

Porównaj biura

0 z 3
Porównaj

Masz pytania dotyczące oferty?

Opowiedz nam o swoich potrzebach, a my pomożemy Ci wybrać biuro dopasowane do Twojej firmy.
Napisz do nas!

Dlaczego warto skorzytać z pomocy doradców?

Płynny proces i oszczędność czasu – dedykowany opiekun skoordynuje cały proces od analizy potrzeb po przeprowadzkę.
Negocjacje z zyskiem – dzięki znajomości rynku i analizie ryzyka uzyskujemy dla Ciebie najkorzystniejsze warunki i bezpieczną umowę.
Wsparcie techniczne i aranżacyjne – precyzyjnie definiujemy standard biura i pomagamy w jego bezproblemowym przejęciu.
Transparentność bez ryzyka – otrzymujesz jasne raporty rynkowe i pełną informację o potencjalnych zagrożeniach.
Opieka poprocesowa – nasze wsparcie nie kończy się na umowie; jesteśmy do Twojej dyspozycji przez cały okres najmu.

    Ta strona jest chroniona przez reCAPTCHA i obowiązują ją Politykę Prywatności oraz Warunki Korzystania z Usług Google.