Karta nieruchomości

Biura Face 2 Face A

Żelazna 4, Katowice, Dąb

  • Liczne udogodnienia
  • Dogodny dojazd

Kontakt w sprawie wynajmu biura

Taulant i Jakub SPOC

Taulant Wójcikiewicz
Jakub Przybyszewski

Zadzwoń

Pokaż numer telefonu
Umów spotkanie
  • Czynsz bazowy

    od €14.0/m²

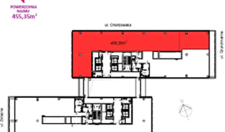
  • Dostępna powierzchnia

    od 387m² do 3 511m²

  • Całkowita powierzchnia biurowa

    26 400m²

  • Dostępny od

    Od zaraz

  • Status budynku

    Istniejący

  • Rodzaj biura

    Tradycyjne

  • Rok budowy

    2020

Kontakt w sprawie wynajmu biura

Taulant i Jakub SPOC

Taulant Wójcikiewicz
Jakub Przybyszewski

Zadzwoń

Pokaż numer telefonu
Umów spotkanie

W tym obiekcie dostępne są także inne formy wynajmu:

O biurze

Nowoczesne biura do wynajęcia w Katowicach – Face2Face A

Face2Face Business Campus – Budynek A to nowoczesny biurowiec klasy A, zlokalizowany w sercu Katowic, przy ul. Żelaznej 4. To idealna przestrzeń dla firm, które poszukują prestiżowego adresu, komfortowych warunków pracy i doskonałej komunikacji miejskiej.

Lokalizacja i dojazd

Budynek znajduje się w dzielnicy Dąb, w pobliżu skrzyżowania ulic Chorzowskiej i Grundmanna. Lokalizacja zapewnia:

  • Doskonały dostęp do komunikacji miejskiej – przystanki tramwajowe i autobusowe w odległości 200 m
  • Bliskość centrum Katowic
  • Wypożyczalnię rowerów miejskich w pobliżu
  • Łatwy dojazd do DTŚ i autostrady A4
  • Dostępna powierzchnia

Możliwość elastycznego podziału przestrzeni i dostosowania do potrzeb najemcy.

Udogodnienia dla najemców

Biurowiec Face2Face A oferuje szeroki wachlarz udogodnień:

  • Recepcja i całodobowa ochrona
  • Nowoczesna klimatyzacja i wentylacja
  • Podnoszone podłogi i podwieszane sufity
  • Otwierane okna
  • Punkt ładowania samochodów elektrycznych
  • Kantyna, sklep spożywczy, prysznice, zamykane szafki
  • Stojaki rowerowe
  • Zielone tarasy i patio dostępne dla najemców i mieszkańców
  • Certyfikat ekologiczny BREEAM
  • Możliwości aranżacji przestrzeni

Powierzchnie biurowe są w pełni przystosowane do nowoczesnych standardów pracy:

  • Open space z możliwością wydzielenia gabinetów
  • Strefy relaksu i kuchnie pracownicze
  • Nowoczesne sale konferencyjne
  • Elastyczne układy dopasowane do potrzeb najemcy

Dlaczego warto?

Face2Face A to idealna propozycja dla firm, które szukają:

  • Biura do wynajęcia w Katowicach
  • Nowoczesnej powierzchni biurowej klasy A
  • Biura z dobrą komunikacją miejską
  • Elastycznych warunków najmu i wysokiego standardu

Skontaktuj się z nami!

Zainteresowała Cię ta oferta? Skontaktuj się z nami już dziś, aby poznać szczegóły i umówić się na prezentację powierzchni. Twoje nowe biuro czeka w sercu Katowic!

Więcej informacji

  • Wskaźnik miejsc parkingowych

    1/70

  • Standard biura

    • kantyna
    • prysznice
    • otwierane okna
    • sklep spożywczy
    • zamykane szafki
    • stojaki rowerowe
    • podonoszone podłogi
    • punkt ładowania samochodów elektrycznych

Komunikacja

  • Przystanek tramwajowy

    200m  (do 10 min)

  • Przystanek autobusowy

    200m  (do 10 min)

Lokalizacja biura

Zobacz biura do wynajęcia w pobliżu

Zobacz wszystkie
  • Biuro Grundmanna Office (phase 2)
    • Liczne udogodnienia

    Grundmanna Office (phase 2)

    Wynajem tradycyjny

    Grundmanna, 40-078 Katowice, Dąb

    Biuro Grundmanna Office (phase 2)
    • Powierzchnia

      23 840m²

    • Cena

      na zapytanie

  • Biuro Face 2 Face B
    • Liczne udogodnienia
    • +2 więcej

    Face 2 Face B

    Wynajem tradycyjny

    Żelazna 2, 40-851 Katowice, Dąb

    Biuro Face 2 Face B
    • Powierzchnia

      1 331 - 3 116 m²

    • Cena

      na zapytanie

  • Biuro Face 2 Face B
    • Liczne udogodnienia
    • +2 więcej

    Face 2 Face B

    Podnajem

    Żelazna 2, 40-851 Katowice, Dąb

    Biuro Face 2 Face B
    • Powierzchnia

      220m²

    • Cena

      na zapytanie

  • Biuro Grundmanna Office Park
    • Liczne udogodnienia
    • Ostatnie powierzchnie

    Grundmanna Office Park

    Wynajem tradycyjny

    Żelazna 10, 40-078 Katowice, Dąb

    Biuro Grundmanna Office Park
    • Powierzchnia

    • Cena

      na zapytanie

  • Biuro Global Office Park A2
    • Liczne udogodnienia
    • +2 więcej

    Global Office Park A2

    Wynajem tradycyjny

    Zabrska 19, 40-083 Katowice, Śródmieście

    Biuro Global Office Park A2
    • Powierzchnia

      368 - 7 073 m²

    • Cena

      od €15.0/m²

  • Biuro Katowice Business Point
    • Dogodny dojazd

    Katowice Business Point

    Wynajem tradycyjny

    Ściegiennego 3, 40-114 Katowice, Dąb

    Biuro Katowice Business Point
    • Powierzchnia

      183 - 11 264 m²

    • Cena

      od €13.5/m²

  • Biuro CRAFT
    • Liczne udogodnienia
    • Dogodny dojazd

    CRAFT

    Wynajem tradycyjny

    Chorzowska 105, 40-001 Katowice, Dąb

    Biuro CRAFT
    • Powierzchnia

      800 - 7 000 m²

    • Cena

      na zapytanie

  • Biuro Global Office Park A1
    • Liczne udogodnienia
    • +2 więcej

    Global Office Park A1

    Podnajem

    Zabrska 17, 40-083 Katowice, Śródmieście

    Biuro Global Office Park A1
    • Powierzchnia

      1 223m²

    • Cena

      od €15.0/m²

Zobacz wszystkie
  • Lokalizacja

    Żelazna 4, 40-101 Katowice, Dąb

  • Czynsz bazowy

    od €14.0/m²

  • Dostępna pow.

    od 387m² do 3 511m²

Karta nieruchomości

Porównaj biura

0 z 3
Porównaj

Masz pytania dotyczące oferty?

Opowiedz nam o swoich potrzebach, a my pomożemy Ci wybrać biuro dopasowane do Twojej firmy.
Napisz do nas!

Dlaczego warto skorzytać z pomocy doradców?

Płynny proces i oszczędność czasu – dedykowany opiekun skoordynuje cały proces od analizy potrzeb po przeprowadzkę.
Negocjacje z zyskiem – dzięki znajomości rynku i analizie ryzyka uzyskujemy dla Ciebie najkorzystniejsze warunki i bezpieczną umowę.
Wsparcie techniczne i aranżacyjne – precyzyjnie definiujemy standard biura i pomagamy w jego bezproblemowym przejęciu.
Transparentność bez ryzyka – otrzymujesz jasne raporty rynkowe i pełną informację o potencjalnych zagrożeniach.
Opieka poprocesowa – nasze wsparcie nie kończy się na umowie; jesteśmy do Twojej dyspozycji przez cały okres najmu.

    Ta strona jest chroniona przez reCAPTCHA i obowiązują ją Politykę Prywatności oraz Warunki Korzystania z Usług Google.