Karta nieruchomości

Biura Kaskada

Jana Pawła II 12, Warszawa, Śródmieście

  • Blisko metra
  • Dogodny dojazd

Kontakt w sprawie wynajmu biura

Taulant i Jakub SPOC

Taulant Wójcikiewicz
Jakub Przybyszewski

Zadzwoń

Pokaż numer telefonu
Umów spotkanie
  • Czynsz bazowy

    od €18.6/m²

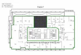
  • Dostępna powierzchnia

    128m²

  • Całkowita powierzchnia biurowa

    20 700m²

  • Dostępny od

    Od zaraz

  • Status budynku

    Istniejący

  • Rodzaj biura

    Tradycyjne

  • Rok budowy

    1998

Kontakt w sprawie wynajmu biura

Taulant i Jakub SPOC

Taulant Wójcikiewicz
Jakub Przybyszewski

Zadzwoń

Pokaż numer telefonu
Umów spotkanie

O biurze

Kaskada to nowoczesny budynek biurowy, który oferuje 14 200 m2 powierzchni do wynajęcia. Do dyspozycji najemców jest również podziemny parking, zapewniający około 100 miejsc postojowych. Standard budynku oraz przeszklona fasada, zapewniają komfortowe warunki do pracy i dostęp do światła dziennego. Kaskada znajduje się przy Alei Jana Pawła II, na warszawskim Śródmieściu. Położenie w centrum Warszawy pozwala na swobodne korzystanie z komunikacji miejskiej, w tym ze stacji metra. Dodatkowo w pobliżu znajduję się również Dworzec Centralny. Dodatkową zaletą budynku są znajdujące się w pobliżu restauracje oraz banki.

Więcej informacji

  • Wskaźnik miejsc parkingowych

    1/200

  • Standard biura

    • otwierane okna

Komunikacja

  • Stacja metra

    200m  (do 10 min)

  • Stacja kolejowa

    500m  (do 10 min)

  • Przystanek tramwajowy

    200m  (do 10 min)

  • Przystanek autobusowy

    85m  (do 3 min)

Lokalizacja biura

Zobacz biura do wynajęcia w pobliżu

Zobacz wszystkie
  • Biuro Rondo 1
    • Liczne udogodnienia
    • +3 więcej

    Rondo 1

    Co-work

    ONZ 1, 00-116 Warszawa, Śródmieście

    Biuro Rondo 1
    • Stanowiska

      183 stanowiska

    • Cena

      na zapytanie

  • Biuro Rondo 1
    • Liczne udogodnienia
    • +3 więcej

    Rondo 1

    Wynajem tradycyjny

    ONZ 1, 00-116 Warszawa, Śródmieście

    Biuro Rondo 1
    • Powierzchnia

      531 - 3 165 m²

    • Cena

      od €22.5/m²

  • Biuro Rondo 1
    • Liczne udogodnienia
    • +3 więcej

    Rondo 1

    Podnajem

    ONZ 1, 00-116 Warszawa, Śródmieście

    Biuro Rondo 1
    • Powierzchnia

      1 538m²

    • Cena

      od €22.5/m²

  • Biuro Warsaw Towers
    • Blisko metra
    • +2 więcej

    Warsaw Towers

    Podnajem

    Sienna 39, 00-121 Warszawa, Śródmieście

    Biuro Warsaw Towers
    • Powierzchnia

      558m²

    • Cena

      od €19.9/m²

  • Biuro Warsaw Towers
    • Blisko metra
    • +2 więcej

    Warsaw Towers

    Wynajem tradycyjny

    Sienna 39, 00-121 Warszawa, Śródmieście

    Biuro Warsaw Towers
    • Powierzchnia

      179 - 1 114 m²

    • Cena

      od €17.0/m²

  • Biuro Skylight Złote Tarasy
    • Liczne udogodnienia
    • +3 więcej

    Skylight Złote Tarasy

    Co-work

    Złota 59, 00-120 Warszawa, Śródmieście

    Biuro Skylight Złote Tarasy
    • Stanowiska

      151 stanowisk

    • Cena

      na zapytanie

  • Biuro Skylight Złote Tarasy
    • Liczne udogodnienia
    • +3 więcej

    Skylight Złote Tarasy

    Wynajem tradycyjny

    Złota 59, 00-120 Warszawa, Śródmieście

    Biuro Skylight Złote Tarasy
    • Powierzchnia

      72 - 2 032 m²

    • Cena

      od €21.0/m²

  • Biuro SKYSAWA A
    • Blisko metra
    • Dogodny dojazd

    SKYSAWA A

    Wynajem tradycyjny

    Świętokrzyska 36, 00-116 Warszawa, Śródmieście

    Biuro SKYSAWA A
    • Powierzchnia

    • Cena

      na zapytanie

  • Biuro Lumen Złote Tarasy
    • Liczne udogodnienia
    • +3 więcej

    Lumen Złote Tarasy

    Wynajem tradycyjny

    Złota 59, 00-120 Warszawa, Śródmieście

    Biuro Lumen Złote Tarasy
    • Powierzchnia

      409m²

    • Cena

      od €21.0/m²

Zobacz wszystkie
  • Lokalizacja

    Jana Pawła II 12, 00-124 ...

  • Czynsz bazowy

    od €18.6/m²

  • Dostępna pow.

    128m²

Karta nieruchomości

Porównaj biura

0 z 3
Porównaj

Masz pytania dotyczące oferty?

Opowiedz nam o swoich potrzebach, a my pomożemy Ci wybrać biuro dopasowane do Twojej firmy.
Napisz do nas!

Dlaczego warto skorzytać z pomocy doradców?

Płynny proces i oszczędność czasu – dedykowany opiekun skoordynuje cały proces od analizy potrzeb po przeprowadzkę.
Negocjacje z zyskiem – dzięki znajomości rynku i analizie ryzyka uzyskujemy dla Ciebie najkorzystniejsze warunki i bezpieczną umowę.
Wsparcie techniczne i aranżacyjne – precyzyjnie definiujemy standard biura i pomagamy w jego bezproblemowym przejęciu.
Transparentność bez ryzyka – otrzymujesz jasne raporty rynkowe i pełną informację o potencjalnych zagrożeniach.
Opieka poprocesowa – nasze wsparcie nie kończy się na umowie; jesteśmy do Twojej dyspozycji przez cały okres najmu.

    Ta strona jest chroniona przez reCAPTCHA i obowiązują ją Politykę Prywatności oraz Warunki Korzystania z Usług Google.